Eladó ház - Szentlőrinc

KAPCSOLAT
Boros Linda


+36 70 521

blhomeandfinance@

Az időpont kérés naptár ikonja
IDŐPONTOT KÉREK
A visszahívás kérés telefon ikonja egy azt körbe ölelő nyíllal
VISSZAHÍVÁST KÉREK
Ajánlom egy ismerősömnek ikon
AJÁNLOM EGY ISMERŐSÖMNEK
Facebook megosztás ikon
MEGOSZTÁS

KAPCSOLATFELVÉTEL

Küldés

Az üzenetet sikeresen elküldtük!
Hiba történt!
INGATLAN ADATAI

Ingatlan jellege

családi ház

Belső terület

80 m²

Telek terület

862 m²

Tájolás

dél

Építési állapot

használt

Építési mód

vegyes

Szobák száma

3 szoba

Épület szintje

1.

Épült

1960

Ingatlan állapot

kívül: átlagos
belül: átlagos

Klíma

van

Ablak szerkezete

2 rétegű thermoplan

Fűtés

gázkonvektor

Komfort

összkomfort

Parkolás

van, nem meghatározott

Közműállapot

csatorna: bekötve
gáz: bekötve
villany: bekötve
víz: bekötve

Energetika

nincs megadva

Az időpont kérés naptár ikonja
HTML
Az időpont kérés naptár ikonja
PDF
Eladó ház
Ingatlan azonosító:
42_tw

Baranya megye, Szentlőrinc

Irányár

34.99 M Ft
(437.38 E Ft/㎡)

Szobák

3 szoba

Terület

80 m²

Telek terület

862 m²
INGATLAN LEÍRÁSA
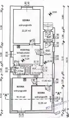
Eladásra kínálok Szentlőrinc családi házas övezetében, egy családi házat.

Az ingatlan 2005-ben bővítésre került. A korábbi házhoz hozzáépítésre került 2 db szoba.
Az eredeti ház vegyes falazatú, mely a 60-as években épült.

Jelenlegi állapotában, így egy 3 szobás családi ház keresi új tulajdonosát.
Fűtése jelenleg gázkonvektorral, fa tüzelésű kályhával, és hűtő-fűtő klímával megoldott. Nyílászárói, 2 rétegű fa nyílászárók, melyek 2005-ben kerültek beépítésre.

A telek mérete 862 m2, melyen 80 m2 a ház. Tetőtér beépítés lehetséges.

A ház végében található egy téglából épült épület, mely jelenleg garázsként funkcionál.

Amennyiben hitelre lenne szüksége a megvásárláshoz, állok rendelkezésre, mint független pénzügyi szakember.

További infó, megtekintés esetén várom hívását a megadott telefonszámon.

INGATLAN ADATAI

Ingatlan jellege
családi ház
Belső terület
80 m²
Telek terület
862 m²
Tájolás
dél
Építési állapot
használt
Építési mód
vegyes
Szobák száma
3 szoba
Épület szintje
1.
Épült
1960
Ingatlan állapot
kívül: átlagos
belül: átlagos
Klíma
van
Ablak szerkezete
2 rétegű thermoplan
Fűtés
gázkonvektor
Komfort
összkomfort
Parkolás
van, nem meghatározott
Közműállapot
csatorna: bekötve
gáz: bekötve
villany: bekötve
víz: bekötve
Energetika
nincs megadva
TÉRKÉP

Baranya megye, Szentlőrinc

Hitelkalkulátor


KAPCSOLAT
Boros Linda
Boros Linda


+36 70 521 0521

blhomeandfinance@gmail.com

KAPCSOLAT
Boros Linda

+36 70 521

blhomeandfinance@

Az időpont kérés naptár ikonja
IDŐPONTOT KÉREK
A visszahívás kérés telefon ikonja egy azt körbe ölelő nyíllal
VISSZAHÍVÁST KÉREK
Ajánlom egy ismerősömnek ikon
AJÁNLOM EGY ISMERŐSÖMNEK
Facebook megosztás ikon
MEGOSZTÁS

KAPCSOLATFELVÉTEL

Küldés

Az üzenetet sikeresen elküldtük!
Hiba történt!
INGATLAN ADATAI

Ingatlan jellege

családi ház

Belső terület

80 m²

Telek terület

862 m²

Tájolás

dél

Építési állapot

használt

Építési mód

vegyes

Szobák száma

3 szoba

Épület szintje

1.

Épült

1960

Ingatlan állapot

kívül: átlagos
belül: átlagos

Klíma

van

Ablak szerkezete

2 rétegű thermoplan

Fűtés

gázkonvektor

Komfort

összkomfort

Parkolás

van, nem meghatározott

Közműállapot

csatorna: bekötve
gáz: bekötve
villany: bekötve
víz: bekötve

Energetika

nincs megadva

Az időpont kérés naptár ikonja
HTML
Az időpont kérés naptár ikonja
PDF
Baranya megye - Szentlőrinc
Baranya megye - Szentlőrinc
Baranya megye - Szentlőrinc
Baranya megye - Szentlőrinc
Baranya megye - Szentlőrinc
Baranya megye - Szentlőrinc
Baranya megye - Szentlőrinc
Baranya megye - Szentlőrinc
Baranya megye - Szentlőrinc
Baranya megye - Szentlőrinc
Baranya megye - Szentlőrinc
Baranya megye - Szentlőrinc
Baranya megye - Szentlőrinc
Baranya megye - Szentlőrinc
Baranya megye - Szentlőrinc
Baranya megye - Szentlőrinc