KAPCSOLATFELVÉTEL
Ingatlan jellege
családi ház
Belső terület
248 m²
Telek terület
577 m²
Tájolás
kelet
Építési állapot
használt
Építési mód
tégla
Szobák száma
7 szoba
Épület szintje
4.
Épült
kb. 1976
Ingatlan állapot
kívül: jó
belül: jó
Klíma
van
Fűtés
gázkazán
Komfort
összkomfort
Parkolás
van önálló garázs
Közműállapot
csatorna: bekötve
gáz: bekötve
villany: bekötve
víz: bekötve
Energetika
nincs megadva
Baranya megye, Pécs, (Belváros), Székely Bertalan utca
Irányár
(745.97 E Ft/㎡)
Szobák
Emelet
Terület
Telek terület
A családi ház panorámája a városra páratlan. Mindezt az emeleti teraszról csodálhatjuk meg.
A ház legfelső szintjén helyezkednek el a hálószobák, 3 db, melyből kettőből egy hatalmas teraszra jutunk ki. Továbbá egy padlástér, ami jelenleg tárolóként használatos, és egy tusolóval ellátott fürdő és illemhelyiség.
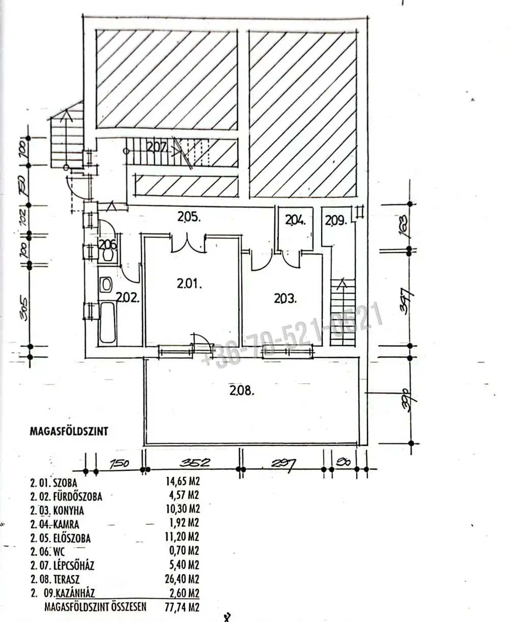
Lépcsőn lejutunk a nappaliba, amelyből egy erkély is nyílik. Ezen a szinten található a konyha, tároló, külön illemhelyiség, kádas fürdőszoba, és további 2 db szoba. Az ingatlannak ez a felső lakórésze, így, itt egy bejárat is található.
Innen közelíthető meg a kert, illetve egy pince is.
A ház oldalában lépcső vezet le az alsó lakórészhez, melyben további szoba + terasz, konyha + kamra, fürdőszoba, és illemhelyiségek találhatóak. Ez szintén külön bejárattal rendelkezik.
Az ingatlan aljában kapott helyet a kazánház, barkácsműhely, és kettő darab garázs.
A hatalmas ingatlan 577 m2-es telken helyezkedik el, mindössze cirka 250 m2.
Mélyföldszint 42 m2, itt találhatóak a garázsok is.
Magasföldszint 48 m2 terasszal, ez a kisebb lakórész.
1.emelet 103 m2, 2.emelet 55 m2, ez pedig a nagyobb lakórész.
Fűtése gázkazánnal, és vegyestüzelésű kazánnal is ellátott. Klíma teszi kellemessé a hőérzetet a nyári hónapokban.
A családi ház nagyon szépen karbantartott, tisztasági festést követően, azonnal költözhető.
Ha hitelre lenne szüksége a megvásárláshoz, állok rendelkezésre, mint független pénzügyi szakértő.
További kérdés, megtekintés esetén a megadott telefonszámon várom hívását.
belül: jó
gáz: bekötve
villany: bekötve
víz: bekötve
Baranya megye, Pécs, Székely Bertalan utca
Hitelkalkulátor

+36 70 521 0521,
blhomeandfinance@gmail.com
KAPCSOLATFELVÉTEL
Ingatlan jellege
családi ház
Belső terület
248 m²
Telek terület
577 m²
Tájolás
kelet
Építési állapot
használt
Építési mód
tégla
Szobák száma
7 szoba
Épület szintje
4.
Épült
kb. 1976
Ingatlan állapot
kívül: jó
belül: jó
Klíma
van
Fűtés
gázkazán
Komfort
összkomfort
Parkolás
van önálló garázs
Közműállapot
csatorna: bekötve
gáz: bekötve
villany: bekötve
víz: bekötve
Energetika
nincs megadva